Einfamilienhaus in hochwassersicherer Lage und Terrasse in Ediger-Eller

56418 Ediger-Eller, Reiheneckhaus zum Kauf

Kontaktdaten

Mila Todorova, Mosel Immobilien Center

Objektdaten

  • Objekt ID
    2525b
  • Objekttypen
    Haus, Reiheneckhaus
  • Adresse
    56418 Ediger-Eller
    Rheinland-Pfalz
  • Etagen im Haus
    3
  • Wohnfläche ca.
    139 m²
  • Grund­stück ca.
    136 m²
  • Zimmer
    5
  • Schlafzimmer
    4
  • Badezimmer
    2
  • Wesentlicher Energieträger
    Öl
  • Baujahr
    1949
  • Letzte Modernisierung
    1991
  • Zustand
    renovierungsbedürftig
  • Ausstattung
    Standard
  • Verfügbar ab
    sofort
  • Qualifikation
    Geprüfte Immobilienmaklerin
  • Heizungsart
    Öl-Heizung
  • Status
    In Vermarktung
  • Area Unit
    sqm
  • Provisionspflichtig
    Ja
  • Käufer­provision
    3,57% inkl. USt.
  • Kaufpreis
    123.000 EUR

Ausstattung / Merkmale

  • ✓ Abstellraum
  • ✓ Einbauküche
  • ✓ Gäste-WC
  • ✓ Kamin
  • ✓ Keller

Objekt­beschreibung

Beschreibung

In ruhiger, hochwassersicherer Lage von Ediger-Eller erwartet Sie dieses großzügige Einfamilienhaus mit solider Bausubstanz und viel Platz für die ganze Familie. Der Ortsteil Ediger steht auf der Beliebtheitsskala aufgrund seines historischen Altstadtflairs weit oben in puncto Wohnqualität. Auf ca. 139 m² Wohnfläche verteilen sich 5 gut geschnittene Zimmer, die Ihnen zahlreiche Gestaltungsmöglichkeiten bieten.

Das Hauptgebäude wurde im Jahr 1949 errichtet und präsentiert sich in einem gepflegten Zustand. Die Wohnfläche verteilt sich auf insgesamt 3 Etagen und ist klassisch aufgeteilt. Herzstück des Hauses ist der gemütliche Wohnbereich mit Pelletofen, der für wohlige Wärme sorgt. Zusätzlich steht eine Ölheizung aus dem Jahr 1997 zur Verfügung. Die im Haus verbleibende Einbauküche gestaltet sich zeitlos und praktisch und mit dem daneben liegenden Esszimmer bietet sich hier genug Platz für die Familie.

Die Aufteilung der einzelnen Wohnetagen gestaltet sich wie folgt:

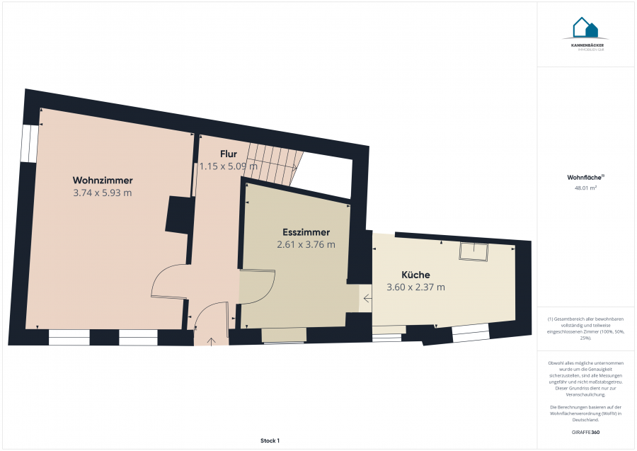
Erdgeschoss:
- Flur
- Wohnzimmer
- Küche mit angrenzendem Esszimmer

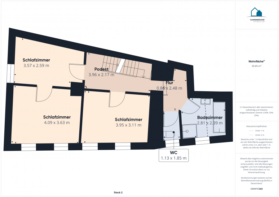
1. Obergeschoss
- Flur
- 3 Zimmer, geeignet als Schlaf- und Gästezimmer, sowie Büro
- Badezimmer mit Dusche und Badewanne
- separates WC

2. Obergeschoss
- 3 weitere Zimmer

Gewölbekeller

Das Zweitgebäude auf der gegenüberliegenden Seite kann gegen Aufpreis ebenfalls erworben werde. Es besticht vor allem durch die schöne Sonnenterrasse und die Garage mit elektrischem Tor und 400 V Anschluss für E-Autos. Im Gebäude selbst ist momentan ein Waschraum mit Waschmaschinenanschluss und WC untergebracht. Zudem gibt es hier ein weiteres Zimmer, egal ob Rückzugsort oder Hobbyraum, Möglichkeiten gibt es viele. Dieses Gebäude kann optional dazu erworben werden.

Fazit:
Ein solides, geräumiges Zuhause mit Charme, ideal für Familien oder alle, die Wert auf Platz, Funktionalität und eine ruhige, sichere Wohnlage legen.

Ausstattung

- Ölzentralheizung, Baujahr 1997
- Pelletofen
- 2-fach verglaste Fenster aus 1991
- Rollläden
- Keller

Sonstige Informationen

Die Höhe der Courtage richtet sich nach den ab dem 23.12.2020 in Kraft getretenen gesetzlichen Regelungen zur Teilung der Maklercourtage. Hiernach wird die Courtage regelmäßig für beide Parteien (Eigentümer und Käufer) fällig. Sie beträgt 3,57 % des Kaufpreises einschließlich Umsatzsteuer und wird mit notariellem Vertragsabschluss verdient und fällig.
Alle Angaben sind ohne Gewähr und basieren ausschließlich auf Informationen, die uns von unserem Auftraggeber übermittelt wurden. Wir übernehmen keine Gewähr für die Vollständigkeit, Richtigkeit und Aktualität dieser Angaben.

Lage

Das Haus liegt in Ediger-Eller an der Mittelmosel, Landkreis Cochem-Zell. Eingebettet zwischen Mosel und Weinbergen liegt dieser malerische Weinort in der berühmten Calmont-Region, unweit des steilsten Weinbergs Europas. Geprägt vom Tourismus besteht der Ort aus unzähligen Winzerstuben, Restaurants und Pensionen. Beim Spaziergang durch die kleinen Gassen lässt man sich nur zu gern einfangen vom Anblick der schön restaurierten alten Fachwerkhäuser. Die Lage des Ortes lässt viel Abwechslung übrig durch die Nähe zu Cochem mit einer guten Infrastruktur und natürlich den Urlaubs- und Weinorten wie Bremm oder Beilstein. Nach Trier braucht man mit dem Auto nur eine Stunde und Kastellaun im Hunsrück liegt 30 Fahrminuten weit entfernt. Dinge des alltäglichen Bedarfs lassen sich bequem in Cochem einkaufen und erledigen. Ärzte, Lebensmittelmärkte, Krankenhaus und eine wunderschöne Altstadt warten auf Ihren Besuch. Noch entspannter fährt es sich natürlich mit der Bahn, Ediger-Eller hat einen Bahnhof mit Anbindung an Cochem, Trier und Koblenz. Auch der nächste Flughafen ist mit 33 km Entfernung schnell zu erreichen.
Zu guter Letzt ist die Moselregion natürlich prädestiniert für Radtouren, Kanu- und Schiffsfahrten und schöne Wanderungen durch die Weinberge.

Die dargestellte Position der Immobilie ist nur eine ungefähre Angabe.

Direktanfrage

* Pflichtangaben
 SSL-verschlüsselt
Darstellung der Immobilien mit WP-ImmoMakler und Daten aus