2 vermietete MFH mit insges. 5-6 Wohnungen, Gewerbefläche und Garagen in attraktiver Lage von Zell

56856 Zell (Mosel), Mehrfamilienhaus zum Kauf

Kontaktdaten

Tanja Bürger, Mosel Immobilien Center

Objektdaten

  • Objekt ID
    2124a
  • Objekttypen
    Haus, Mehrfamilienhaus
  • Adresse
    56856 Zell (Mosel)
  • Etagen im Haus
    4
  • Wohnfläche ca.
    341 m²
  • Grund­stück ca.
    265 m²
  • Nutzfläche ca.
    200 m²
  • Zimmer
    22
  • Schlafzimmer
    5
  • Badezimmer
    5
  • Heizungsart
    Zentralheizung
  • Wesentlicher Energieträger
    Öl
  • Baujahr
    1950
  • Zustand
    gepflegt
  • Stellplätze gesamt
    3
  • Garagen
    3 Stellplätze
  • Heizungsart
    Zentralheizung
  • Area Unit
    sqm
  • Provisionspflichtig
    Ja
  • Käufer­provision
    3,57 % zzgl. MwSt.
  • Kaufpreis
    450.000 EUR

Ausstattung / Merkmale

  • ✓ Garage

Objekt­beschreibung

Beschreibung

Aufteilung:
EG:
Nr.24 (rechts): Eingang zu den Wohnungen, Schaufenster, Mülltonnen-Raum, Toilette, Laden
Hintergebäude: Keller
Nr. 26 (links): "Ela's Laden"

OG:
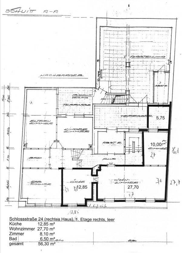
Nr. 24: Wohnung 1 (ca. 62 m²)
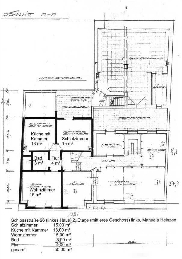
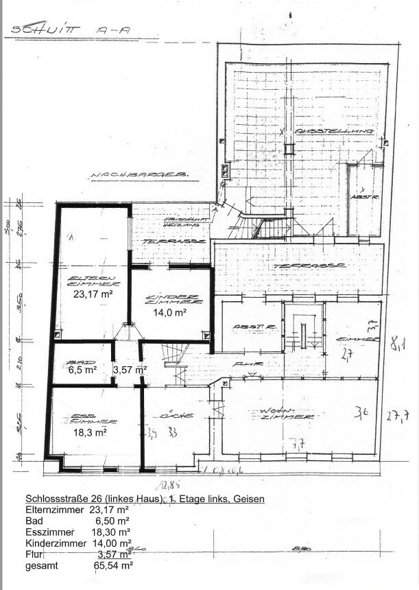
Nr. 26: Wohnung 2 (ca. 65 m²)
Hintergebäude “Ela´s Laden“ mit zusätzlicher Ladenfläche, mit Ausgang zu Dachterrasse und Garagen

2. OG:
Nr. 24: Wohnung 3 (ca. 40 m²) – muss neu ausgebaut werden
Nr. 26: Wohnung 4 (ca. 65 m²)

DG.:
Nr. 24: Wohnung 5 (ca. 40 m²) – muss neu ausgebaut werden
Nr. 26: Wohnung 6 (ca. 56 m²)

Es handelt sich hier um zwei Mehrfamilienhäuser mit Gewerbeflächen in attraktiver Lage von Zell in der Schlossstraße plus Hintergebäude in der Jakobstraße mit einer Gesamtfläche von 550 m². Haus Nr. 24 wurde in 1920 erbaut und Nr. 26 in 1950. Beide Häuser wurden im Laufe der Jahre überwiegend modernisiert und befinden sich aktuell in einem gepflegten Zustand. Wasserleitungen wurden seit 2000 und Elektrik seit 2010 nach und nach erneuert. Letztes Jahr wurden fast alle Fenster in
beiden Häusern erneuert. Auch Bäder und die Toiletten auf der Geschäftsfläche wurden modernisiert. 4 Wohnungen sind dauerhaft vermietet. Von allen Wohnzimmern aus hat man einen tollen Moselblick, zwei weitere Wohnungen können nach Renovierung ebenfalls vermietet werden. Auf der Rückseite befinden sich 2 Garagen, die ebenfalls vermietet werden können, sowie ein weiterer Raum. Kostenfreie Parkplätze sind auf der angrenzenden sowie auf der gegenüberliegenden Straßenseite sowie auf dem ehemaligen Bahnhofs- und am Moselgelände zu finden.

Ausstattung

Innen:
Öl-Zentralheizung von 2016, Bodenbelag: Fliesen, PVC, Laminat, Parkett. Doppelt verglaste Kunststoff-Fenster (2024).

Aussen:
Dacheindeckung: Kunst- und Naturschiefer, 2 Garagen plus Nebenraum.

Sonstige Informationen

Die Höhe der Courtage richtet sich nach den ab dem 23.12.2020 in Kraft getretenen gesetzlichen Regelungen zur Teilung der Maklercourtage. Hiernach wird die Courtage regelmäßig für beide Parteien (Eigentümer und Käufer) fällig. Sie beträgt 3,57 % des Kaufpreises einschließlich Umsatzsteuer und wird mit notariellem Vertragsabschluss verdient und fällig.

Alle Angaben sind ohne Gewähr und basieren ausschließlich auf Informationen, die uns von unserem Auftraggeber übermittelt wurden. Wir übernehmen keine Gewähr für die Vollständigkeit, Richtigkeit und Aktualität dieser Angaben.

Lage

Die Lage unweit von der Fußgängerzone von Zell ist äußerst attraktiv. Hier in der historischen Zeller Altstadt gibt es unzählige Straßencafés, Lädchen, Restaurants und Weinlokale, die zum Bummeln und Verweilen einladen. Zell ist einer der schönsten und beliebtesten Urlaubsorte im Mittelmoseltal und verfügt über eine hervorragende Infrastruktur mit Einkaufszentren, Ärzten, Schulen, Schwimmbad, zahlreichen Sportmöglichkeiten und touristischen Attraktionen. Die Lage ist ideal für Ausflüge zu den Sehenswürdigkeiten der Mittelmosel, sowie für Wander- und Fahrradtouren in die Umgebung. Die Nähe zum Flughafen Frankfurt-Hahn (20 km) und ein gut ausgebautes Straßennetz sorgen für problemlose Erreichbarkeit aus allen Teilen Europas.

Die dargestellte Position der Immobilie ist nur eine ungefähre Angabe.

Direktanfrage

* Pflichtangaben
 SSL-verschlüsselt
Darstellung der Immobilien mit WP-ImmoMakler und Daten aus