Stadthaus inmitten der Zeller Altstadt mit Garage und Terrasse

56856 Zell, Einfamilienhaus zum Kauf

Kontaktdaten

Tanja Bürger, Mosel Immobilien Center

Objektdaten

  • Objekt ID
    2539a
  • Objekttypen
    Einfamilienhaus, Ferienimmobilie, Haus
  • Adresse
    56856 Zell
    Rheinland-Pfalz
  • Etagen im Haus
    3
  • Grund­stück ca.
    85 m²
  • Zimmer
    3
  • Schlafzimmer
    2
  • Badezimmer
    1
  • Balkone
    1
  • Terrassen
    1
  • Zustand
    renovierungsbedürftig
  • Stellplätze gesamt
    1
  • Garage
    1 Stellplatz
  • Verfügbar ab
    sofort
  • Area Unit
    sqm
  • Provisionspflichtig
    Ja
  • Käufer­provision
    2.500,- zzgl. MwSt.
  • Kaufpreis
    69.000 EUR

Ausstattung / Merkmale

  • ✓ Als Ferienimmobilie geeignet
  • ✓ Balkon
  • ✓ Einbauküche
  • ✓ Garage
  • ✓ Keller
  • ✓ Terrasse

Objekt­beschreibung

Beschreibung

Das Haus befindet sich inmitten der schönen Zeller Altstadt und besticht durch seine Lage und Aufteilung. Ideal als Ferienwohnsitz, aber auch als Festwohnsitz für die kleine Familie, benötigt diese Immobilie eine handwerklich begabte Hand, um diesem charakterstarken Haus wieder Wohnlichkeit zu verleihen. Die Grundsubstanz ist sehr gut, und ein großes Plus ist die dazugehörige Garage nebst ehemaligem Weinkeller, sowie eine Terrasse.

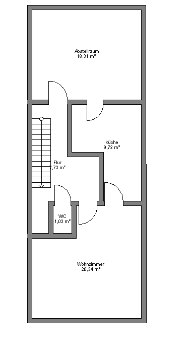
Die Aufteilung des Hauses ist klassisch für Moselhäuser. Vom Erdgeschoss aus gibt es einen Zugang zur Garage, der eigentliche Wohnbereich beginnt im ersten Obergeschoss. Hier befindet sich das Wohnzimmer mit Blick Richtung Altstadt und die angrenzende Küche. Im Anbau des Hauses, angrenzend an die Küche, ist genügend Lagerfläche und Abstellmöglichkeit vorhanden. Auch ein Gäste-WC befindet sich auf dieser Etage.
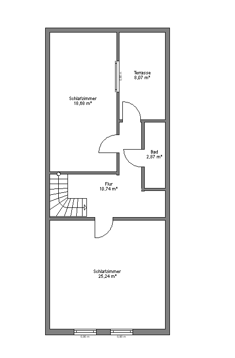
Im zweiten Obergeschoss erwarten den Interessenten zwei sehr geräumige Schlafzimmer und ein Badezimmer mit Dusche und Badewanne. Die Terrasse liegt rückseitig des Hauses, ruhig und geschützt gelegen.
Die Immobilie verfügt über einen großen Dachboden, welcher ausbaufähig wäre und zusätzlichen Wohnraum schaffen könnte.
In der Garage kann ein kleineres Auto Platz finden, dahinter liegt der ehemalige Weinkeller.

Die Immobilie befindet sich in renovierungsbedürftigem Zustand, mit Feuchtigkeitsschäden im Anbau. Das Haus besticht jedoch durch seine Aufteilung, angenehme Raumgrößen und Deckenhöhen. Nachtspeicheröfen sind nur in der ersten Wohnetage vorhanden, im 2. Obergeschoss wäre das Heizen mit Infrarot empfehlenswert.

Ausstattung

- Reihenhaus in schöner Altstadtlage
- Garage
- Nachtspeicheröfen in der ersten Etage
- Kleine Terrasse
- Ausbaureserve Dachboden
- Holztreppen und Türen
- 2-fach verglaste Kunststofffenster
- großer Abstellraum ( Anbau)

Sonstige Informationen

Die Höhe der Courtage richtet sich nach den ab dem 23.12.2020 in Kraft getretenen gesetzlichen Regelungen zur Teilung der Maklercourtage. Hiernach wird die Courtage regelmäßig für beide Parteien (Eigentümer und Käufer) fällig. Sie beträgt 2975,- einschließlich Umsatzsteuer und wird mit notariellem Vertragsabschluss verdient und fällig.
Alle Angaben sind ohne Gewähr und basieren ausschließlich auf Informationen, die uns von unserem Auftraggeber übermittelt wurden. Wir übernehmen keine Gewähr für die Vollständigkeit, Richtigkeit und Aktualität dieser Angaben.

Lage

Die Lage unweit der Fußgängerzone von Zell ist äußerst attraktiv. Hier in der historischen Zeller Altstadt gibt es unzählige Straßencafés, Lädchen, Restaurants und Weinlokale, die zum Bummeln und Verweilen einladen. Zell ist einer der schönsten und beliebtesten Urlaubsorte im Mittelmoseltal und verfügt über eine hervorragende Infrastruktur mit Einkaufszentrum, Ärzten, Schulen, und touristischen Attraktionen. Die Lage ist ideal für Ausflüge zu den Sehenswürdigkeiten der Mittelmosel, sowie für Wander- und Fahrradtouren in die Umgebung. Die Nähe zum Flughafen Frankfurt-Hahn (17 km) und ein gut ausgebautes Straßennetz sorgen für problemlose Erreichbarkeit aus allen Teilen Europas.

Die dargestellte Position der Immobilie ist nur eine ungefähre Angabe.

Direktanfrage

* Pflichtangaben
 SSL-verschlüsselt
Darstellung der Immobilien mit WP-ImmoMakler und Daten aus