Toplage an der Mosel: Gepflegtes Wohn- und Ferienhaus mit 4 Apartments und Betreiberwohnung

56859 Alf, Einfamilienhaus zum Kauf

Kontaktdaten

Tanja Bürger, Mosel Immobilien Center

Objektdaten

  • Objekt ID
    2515
  • Objekttypen
    Einfamilienhaus, Ferienimmobilie, Haus
  • Adresse
    56859 Alf
  • Etagen im Haus
    3
  • Wohnfläche ca.
    328 m²
  • Grund­stück ca.
    389 m²
  • Zimmer
    12
  • Schlafzimmer
    5
  • Badezimmer
    5
  • Balkone
    1
  • Letzte Modernisierung
    2022
  • Zustand
    gepflegt
  • Verfügbar ab
    sofort
  • Status
    In Vermarktung
  • Provisionspflichtig
    Ja
  • Käufer­provision
    3,57 % inkl. Ust
  • Kaufpreis
    395.000 EUR

Ausstattung / Merkmale

  • ✓ Abstellraum
  • ✓ Als Ferienimmobilie geeignet
  • ✓ Balkon
  • ✓ Einbauküche
  • ✓ Gäste-WC
  • ✓ Keller
  • ✓ Wintergarten

Objekt­beschreibung

Beschreibung

In absoluter Toplage von Alf, direkt an der Mosel, präsentiert sich dieses frei stehende, gepflegte Wohn- und Ferienhaus mit vier vollständig ausgestatteten Ferienapartments und einer separaten Betreiberwohnung. Die Immobilie besticht durch ihre Vielseitigkeit und das Potenzial als lukratives Renditeobjekt. Das Haus wurde um 1915 in Massivbauweise erbaut und 1975 um einen Anbau erweitert.

Die Immobilie wurde bis 2024 von den Eigentümern noch als Gästehaus betrieben und bis 2022 regelmäßig renoviert und modernisiert. So ist zum Beispiel die Rückseite des Daches 1999 neu gedeckt worden, 2001 wurde die gesamte Vorderfront der Immobilie neu gestrichen und zwischen 2011 - 2016 wurden die Fenster erneuert. 2021 und 2022 hat man die Terrasse im ersten Stock saniert und den Balkon im zweiten Stock vergrößert. Nachstehend ein kurzer Überblick über die Fakten.

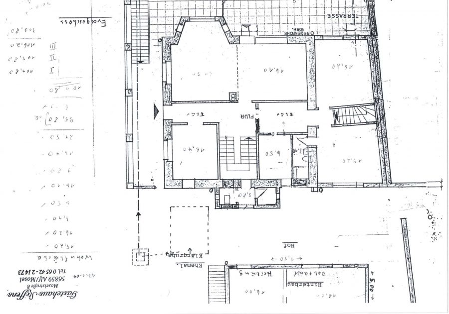
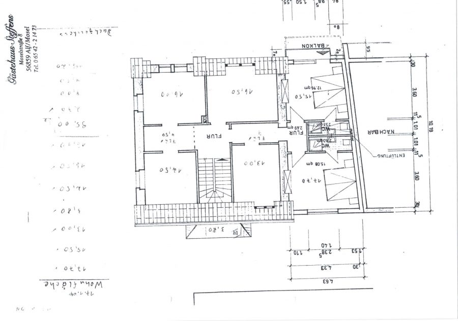
Aufteilung:

- Großzügiger Wohnbereich im Erdgeschoss, gut nutzbar als Gemeinschaftsraum für Gäste, Zugang zum Wintergarten
- Küche und Abstellräume im Erdgeschoss

- 4 Ferienapartments, jeweils mit mindestens einem Schlafzimmer, teilweise renovierten Bädern und eigenem Balkon mit Moselblick.
Alle Wohnungen verfügen über eine eigene Küche

- Betreiberwohnung (ohne Balkon) im Dachgeschoss, ideal für Eigennutzung oder weiteres Vermietungspotenzial

- Wintergarten (2011) – ein geschützter Platz mit Blick ins Grüne oder für Gäste zur Entspannung

- Bruchsteingebäude hinter dem Haus – beherbergt die Heizanlage und bietet weitere Nutzfläche

- Hofbereich mit viel Charme – großes Potenzial zur Gestaltung eines gemütlichen Innenhofes mit mediterranem Flair

Besonderheiten:

- Unverbaubarer Moselblick
- Top-Ferienlage im Herzen des Weinbaugebiets
- Hervorragend für den weiteren Ferienbetrieb geeignet
- Zentrale und dennoch ruhige Lage mit guter Erreichbarkeit

Fazit:
Dieses charmante Objekt vereint historische Substanz, und eine unschlagbare Lage an der Mosel. Es eignet sich perfekt für Investoren, die ein etabliertes Feriendomizil weiterführen möchten, oder für Menschen, die Wohnen und Arbeiten in traumhafter Umgebung kombinieren wollen.

Ausstattung

- Heizung aus 1991
- Fenster aus 2011 - 2016
- Elektrik teilweise erneuert
- Dacheindeckung teilweise Schiefer (Neueindeckung rückseitig 1999), Flachdach Dichtungsbahn 2002
- Bäder modernisiert (2011-2016)
- großer Innenhof mit Bruchsteingebäude
- Gewölbekeller
- solide Bausubstanz

Sonstige Informationen

Die Höhe der Courtage richtet sich nach den ab dem 23.12.2020 in Kraft getretenen gesetzlichen Regelungen zur Teilung der Maklercourtage. Hiernach wird die Courtage regelmäßig für beide Parteien (Eigentümer und Käufer) fällig. Sie beträgt 3,57 % des Kaufpreises einschließlich Umsatzsteuer und wird mit notariellem Vertragsabschluss verdient und fällig.

Alle Angaben sind ohne Gewähr und basieren ausschließlich auf Informationen, die uns von unserem Auftraggeber übermittelt wurden. Wir übernehmen keine Gewähr für die Vollständigkeit, Richtigkeit und Aktualität dieser Angaben.

Lage

Alf Mosel, ein erholsamer Wohn- und Urlaubsort mit ca. 850 Einwohnern an der Schleife der Mosel im Landkreis Cochem- Zell. Innerhalb des Ortes in ca. 0,5-1 km Entfernung befinden sich Grundschule, Kindergarten, eine Bäckerei, Apotheke, Restaurants, Cafés, Straußwirtschaften und verschiedene Weingüter. Einen Supermarkt finden Sie im gegenüber liegenden Ort Bullay und dem 6 km entfernten Zell- Barl, dort befinden sich neben Discounter, Bau- und Bekleidungsgeschäften, ein Krankenhaus sowie ein dazugehöriges medizinisches Versorgungszentrum.
Mit einer Busverbindung und einer Fähre zum Überqueren der Mosel, erreichen Sie den Nachbarort Bullay in nur 2 km Entfernung. In Bullay befindet sich der nächstgelegene Bahnhof, mit Anbindung an die umliegenden Städte wie Trier, Koblenz und Wittlich. Diese können Sie mit dem Zug und einem Auto in nur 30-60 Minuten erreichen. Auch ein nahegelegener Flughafen (Airport Frankfurt- Hahn) mit einer Entfernung von ca. 30 km wickelt die Infrastruktur des Ortes vollständig ab.

Die dargestellte Position der Immobilie ist nur eine ungefähre Angabe.

Direktanfrage

* Pflichtangaben
 SSL-verschlüsselt
Darstellung der Immobilien mit WP-ImmoMakler und Daten aus